Panoramica
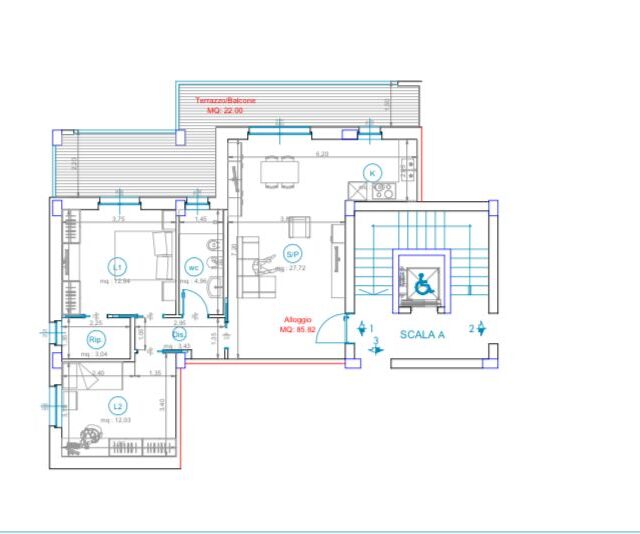
A Palese , precisamente in Via Nicola Minervini , Unifin Group propone in vendita appartamenti di nuova costruzione in fase di realizzazione ,consegna prevista per Dicembre 2028. All’interno di un moderno contesto residenziale , si compone di 3 eleganti fabbricati , ciascuno articolato su 4 piani , con 3 appartamenti per piano , di varie metrature , con posto auto incluso . Caratteristiche principali: possibilità d’acquisto box auto ; materiali di alta qualità ; tecnologie costruttive moderne , volte al risparmio energetico e al comfort abitativo; Una soluzione pensata per chi desidera un’abitazione personalizzabile , costruita con materiali eccellenti .Contattaci per maggiori informazioni 080.375. 63.30, o se preferisci passa a trovarci, siamo in Via della Repubblica Italiana, 40 a Bitonto ( BA). Unifin Group.. . realizziamo il tuo sogno.. . da sempre!
Dettagli
-
Offerta:


